Дома из оцилиндрованного бревна » Дом "Кашира"
предыдущий Дом "Солнечногорск"
следующий Дом "Алферово 2"
- Задать вопросОставить заявку на сайте
Оставьте нам заявку с вашими пожеланиями и мы подготовим для вас интересное предложение.
Вы можете позвонить нашему менеджера по телефонам:
(925) 748-75-12
(495) 959-93-40
(495) 508-66-36
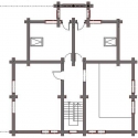
Общая площадь: 244.27 м²
Размеры: 12.3x11.5
Сечение: 240 мм
Сечение: 180 мм
Общая площадь: 188.8 м²
Размеры: 14x10
Сечение: 240 мм
Сечение: 240 мм











